노출콘크리트는 마감을 하지 않기 때문에 비용도 적게 들고 간단한 방법이라고 오해하기 쉽지만 그렇지 않습니다. 콘크리트는 표면을 깨끗하게 만들어내기가 매우 어렵기 때문에 시공하기 전부터 치밀하게 계획을 세워야 합니다. 노출콘크리트를 시공이 왜 어려운지 살펴보겠습니다.

노출콘크리트는 거푸집을 떼어낸 후 홈을 메우거나 약간의 흠을 제거하는 정도 외에는 별다른 처리를 하지 않기 때문에 거푸집의 문양과 상태가 콘크리트에 그대로 나타나게 됩니다. 따라서 콘크리트 표면에 어떤 문양을 새길 것인지 사전에 치밀하게 검토해야 합니다.
노출콘크리트 건물을 처음 등장했을 때는 합판 거푸집을 사용하는 수준이었지만 지금은 다양한 문양이나 색상을 만들어내는 수준으로 발전했습니다. 그렇지만 아마 합판 거푸집을 가장 많이 사용할 것입니다. 합판거푸집을 사용하더라도 합판을 어떤 방식으로 조립하느냐에 따라 외관의 느낌은 달라질 수 있습니다.
벽체 거푸집에 콘크리트를 부어 넣으면 거푸집에 압력(측압)이 작용합니다. 풍선에 물을 넣으면 부풀어 오르는 것처럼 콘크리트도 유동적인 상태이기 때문에 거푸집이 압력을 받게 됩니다. 따라서 콘크리트가 옆으로 미는 측압에 저항할 수 있도록 긴결재(Form tie)를 설치해서 고정해야 하고, 또 거푸집은 안으로 우그러들지 않도록 격리재(Separator)도 설치해야만 원래의 형태를 유지할 수 있습니다.

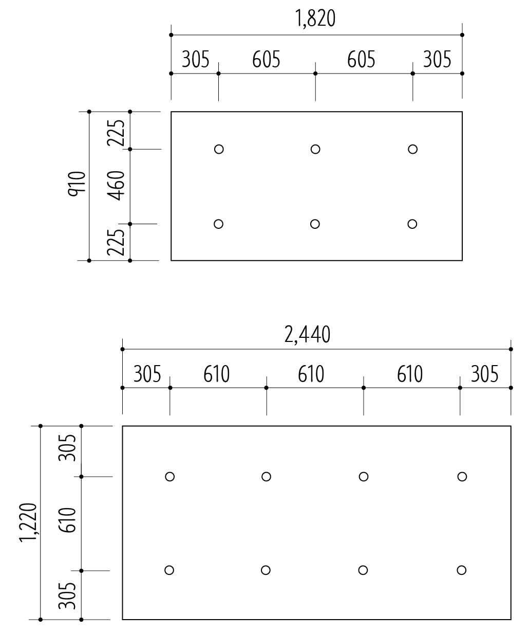
이처럼 거푸집에 격리재와 긴결재를 설치하기 때문에 거푸집을 탈형하면 격리재의 구멍이 그대로 남게 됩니다. 노출콘크리트에서 거푸집 널은 보통 두께 18 ㎜인 코팅 합판을 사용하는데, 합판 크기의 직사각형과 격리재 구멍의 배열은 그 자체로 노출콘크리트의 얼굴이 됩니다.
그래서 어떤 크기의 합판을 쓸 것인지, 구멍 간격은 어느 정도의 간격을 할 것인지 계획을 꼼꼼하게 세워야 합니다. 다음 그림은 합판의 크기에 따라 격리재 구멍을 규칙적으로 배열한 사례입니다.

이렇게 합판 거푸집을 규칙적으로 배열하면 다음과 같은 문양의 노출콘크리트 벽체를 만들어낼 수 있습니다.

노출콘크리트에서 발생하는 균열
노출콘크리트 벽체에 가장 보기 싫은 결함은 아마 균열일 것입니다. 콘크리트는 경화되면서 건조수축하고 일상적인 온도 변화에도 수축과 팽창을 반복하기 때문에 균열이 발생할 수밖에 없습니다. 다만 철근을 적절히 배치해서 균열을 잘게 분산시키고 균열이 발생할 수밖에 없는 구조물이라면 균열을 한 곳으로 유도해서 관리해야 합니다. 긴 벽에 수축줄눈(Control joint) 을 두지 않으면 균열이 날 수밖에 없습니다.
▶ 콘크리트의 구성
콘크리트를 타설할 때도 한 번에 타설해야 합니다. 타설하는 도중에 멈춰서 시간이 경과해 버리면 먼저 타설한 콘크리트가 경화되고 벽면이 분할된 자국이 선명하게 남아 외관이 매우 지저분해집니다.

이어치기 간격이 길어서 흠이 생긴 구간은 눈에도 거슬릴 뿐 아니라 빗물이 틈으로 새어들기 때문에 내구성에도 큰 문제가 됩니다.

노출콘크리트는 마감을 하지 않는 것이라고 생각하기 쉽습니다. 그러나 노출콘크리트는 콘크리트 면이 마감면이 되도록치밀하게 계획하고 정교하게 시공해야 합니다. 노출콘크리트는 평범한 거푸집을 사용하는 것이 아니라 치밀하게 계획된 위치에 격리재 구멍을 뚫고 깨끗한 표면을 얻기 위해 고급 합판 널을 써서 표면처리를 꼼꼼히 하고 콘크리트를 정교하게 타설해야 하기 때문에 난이도가 높은 마감 방법이다.
■ 콘크리트의 구성
■ 콘크리트의 시공 성능 - 워커빌리티(Workability)
■ 콘크리트의 시공 성능 - 반죽질기(Consistency)
■ 콘크리트의 재료 분리 - 블리딩(Bleeding)과 격자균열, 레이턴스(Laitance)
■ 레미콘의 규격
■ 슬럼프 시험
| 콘크리트 타설 시 주의사항 (1) | 2024.01.10 |
|---|---|
| 노출콘크리트의 종류 (0) | 2021.11.16 |
| 콘크리트의 공기량 측정 (0) | 2021.05.06 |