토공사는 주로 굴착과 관련된 공사로서 지하구조물을 만들기 위해서 실시하는 터파기공사와 흙막이공사 등과 관련된 부수되는 공사를 말합니다. 구체적으로 다음과 같은 항목이 포함됩니다.
토공사는 범위가 넓습니다. 전체적인 범위를 살펴보면 다음과 같습니다.

우선 지반조사를 실시합니다. 대지 아래쪽을 직접적으로 파악할 수 있는 방법은 아직 없습니다. 지금은 몇군데 구멍을 파서 시추조사하는 방법이 가장 많이 사용됩니다. 이렇게 지반을 조사한 다음 적절한 지반개량 조치를 병행할 수 있습니다.
■ 암반의 분류
■ 지내력 시험
■ 토질시험
지반조사가 끝나면 흙막이 공사를 진행하면서 대지를 파내려갑니다. 흙파기공사를 진행하면서 대지를 파내려가면 주변대지가 붕괴되지 않도록 흙막이벽체와 지지체를 설치해야만 합니다.
이렇게 대지를 파내려가다보면 지하수가 있게 마련입니다. 이처럼 땅속에 있는 지하수를 적절하게 처리해야만 공사를 원활하게 진행할 수 있습니다.
■ 지하수와 부력
흙파기를 하면서 주변 지반이 안정적인 상태를 유지할 수 있도록 흙막이 공사를 하고 버팀대를 설치하지만 주변 지반이 침하하거나 움직일 수 있습니다. 특히 토공사는 중장비를 사용하기 때문에 중장비의 무게를 견디지 못하고 지반이 침하하는 경우도 있습니다.
■ 주변 지반의 침하 - 히빙(Heaving), 보일링(Boiling), 파이핑(Piping)
■ 지반보강 그라우팅(약액주입공법) - JSP, LW, SGR
따라서 흙막이 벽체와 주변지반이 안정된 상태를 유지하는지 계측관리하면서 모니터링할 필요가 있습니다.
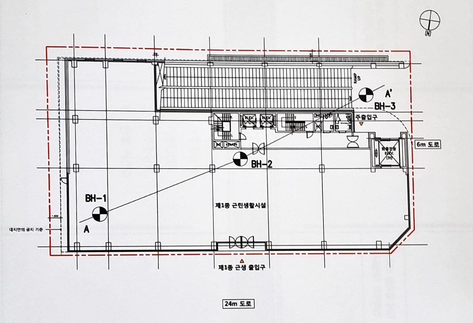
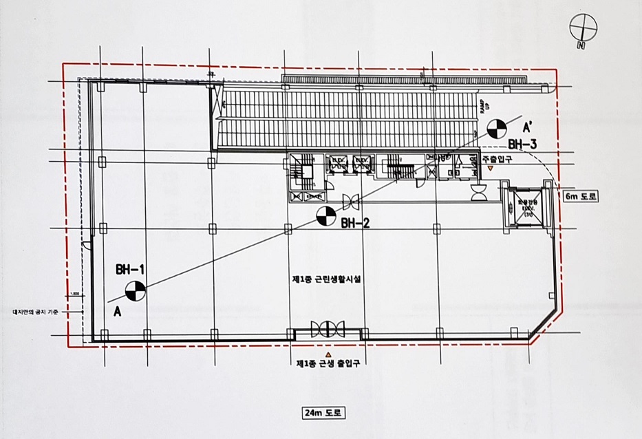
토공사를 진행하기 전에 대지 내부 전체를 파악할 수 있는 방법은 아직까지 없습니다. 몇 군데 구멍을 파서 내부를 파악해볼 수 밖에 없습니다. 아래 사진에 있는 것처럼 크지 않은 현장이라면 3군데 정도 - 대지 가운데 및 대각선 양쪽 - 를 시추하는 정도를 지반의 상황을 파악합니다.

따라서 기본적으로 대지의 나머지 부분은 정확하게 알 수가 없기 때문에 나중에 지반을 굴착해가다 보면 예기치 못한 문제가 발생할 수 있습니다. 예를 들어 지하수가 유출되거나 갑자기 암반이 나올 수도 있습니다. 또 토공사를 진행하는 도중에 비바람이 오래 지속될 수도 있습니다.
토공사는 기본적으로 굴착하는 것이기 때문에 많은 장비를 사용하게 됩니다. 따라서 기계장비때문에 소음과 진동이 크게 발생할 뿐 아니라, 굴착하면서 많은 먼지가 발생할 수 있습니다. 이렇게 소음, 진동, 비산먼지 등이 흔하게 발생하기 때문에 민원이 발생할 수 있고 이에 대비해야 합니다.

토공사를 진행할 때 안전측면에서 가장 조심해야 하는 것이 인접건물의 균열나 침하입니다. 위 사진처럼 흙파기를 한 후 버팀대로 지지하지만 지지력이 충분하지 못하면 인접대지가 밀려들 수 있고 인접건물에 영향을 미칠 수 있습니다. 흙막이 뿐 아니라 지하수의 변동도 인접대지에 영향을 미칠 수 있기 때문에 주의해야 합니다.
또 지하에는 많은 매설물이 있습니다. 특히 인접 도로하부에는 각종 배관이나 매립 설비가 지나갑니다. 공사 중 지하매설물을 손상하지 않도록 사전에 철저히 조사해서 대비할 필요가 있습니다.
위 사진에서 보는 것처럼 흙막이벽체의 지지체를 버팀대(스트러트)로 배치하면 매우 복잡한 구조물이 설치됩니다. 굴착이 모두 완료되면 이제 기초를 설치해야 하는데, 맨 하부에 있는 버팀대(스트러트)부터 해체하면서 공사를 진행해야 합니다. 이때 구조적인 안정성을 반드시 검토해야 하고, 본구조물과 간섭이 일어나지 않도록 사전에 검토해야만 합니다. 본구조물을 설치할 때 버팀대(스트러트)가 방해가 되지 않도록 신경써야 합니다.
■ [다음 글] 토공사 - 지반조사로 무엇을 알 수 있을까?
| 지내력 시험 - 평판재하시험(KS F 2444)의 원리와 방법 (0) | 2021.04.29 |
|---|---|
| 암반의 분류와 지반의 허용지내력 (0) | 2021.04.29 |
| 지반조사 - 보링과 표준 관입 시험 (0) | 2021.04.29 |
| 벤토나이트 안정액(이수) (0) | 2021.04.09 |
| 토공사 - 지반조사로 무엇을 알 수 있을까? (0) | 2021.01.31 |