흙막이벽체를 만드는 공법 중 가장 차수성능이 우수하고, 견고하며, 강성이 높은 벽체가 지하연속벽입니다. 영어식 표현으로 슬러리월(Slurry wall) 공법이라고도 합니다. 지하연속벽은 흙막이벽체로 철근콘크리트벽체를 연속해서 만드는 방법입니다.

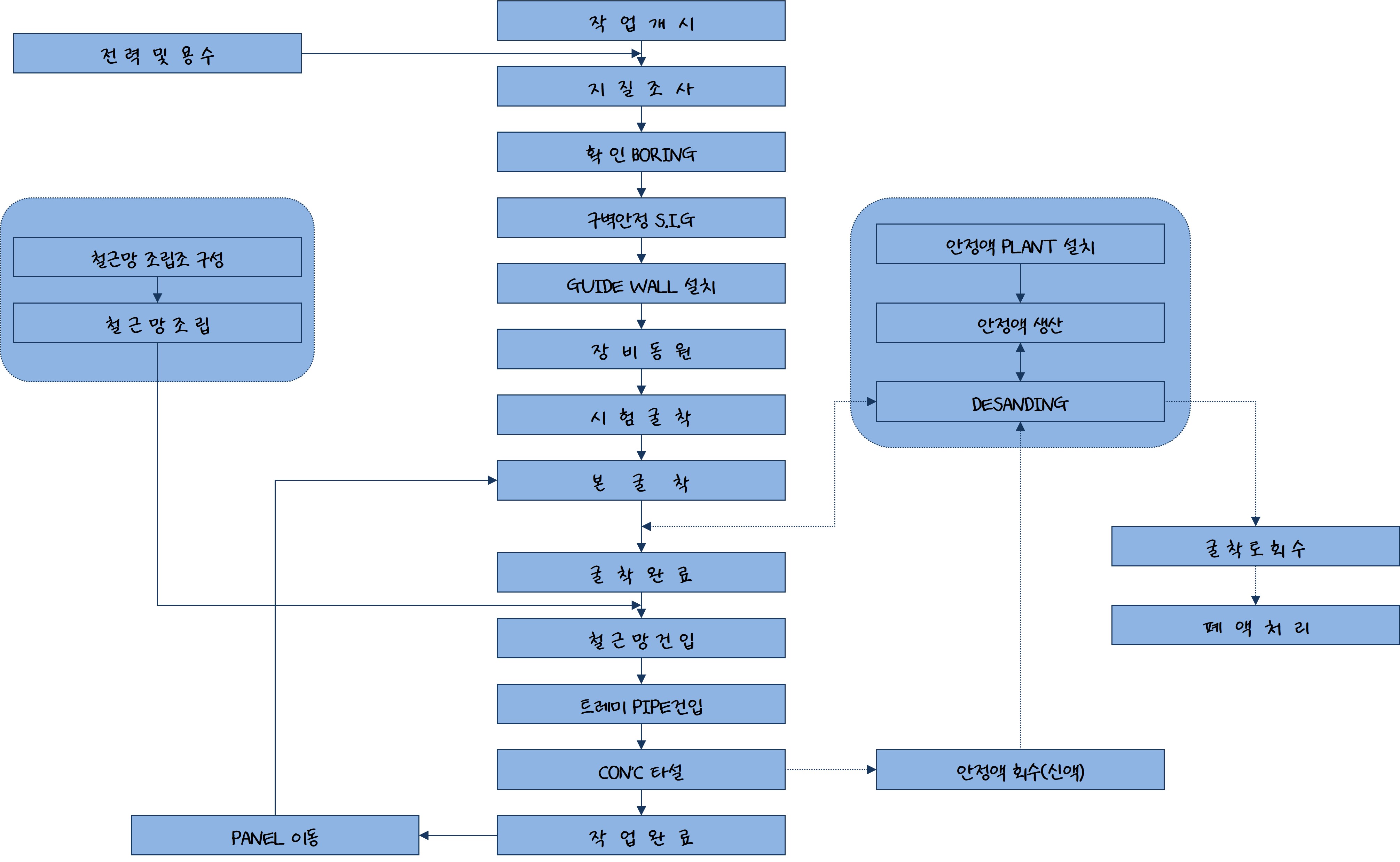
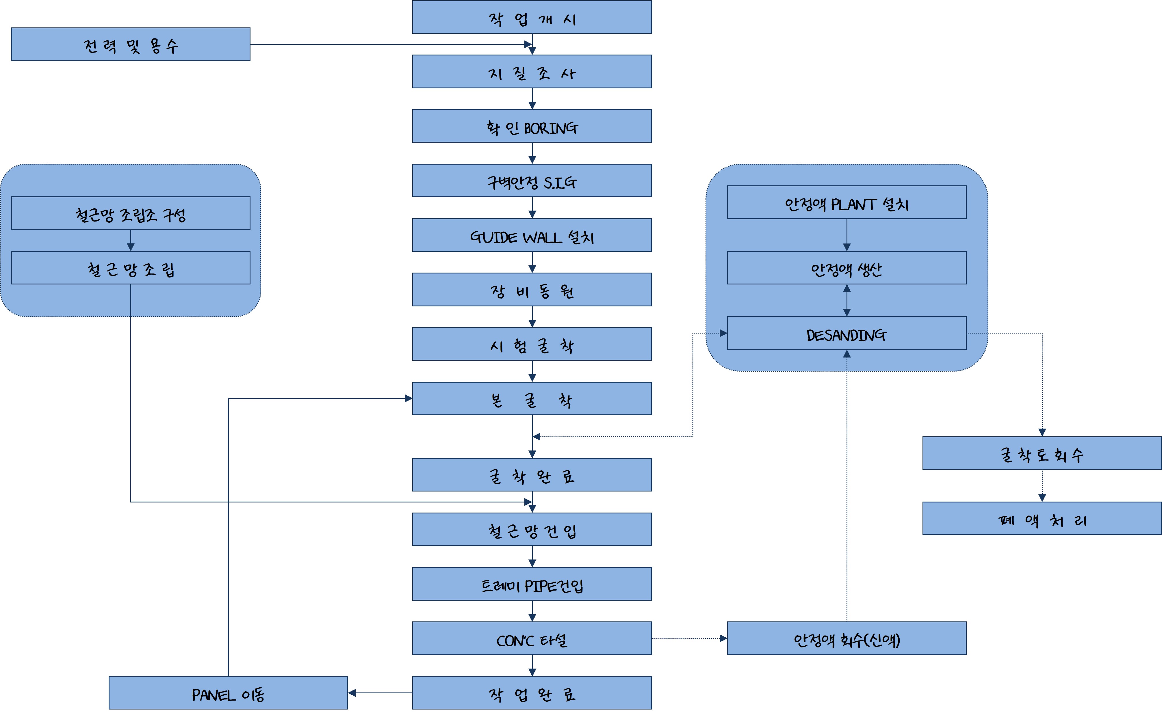
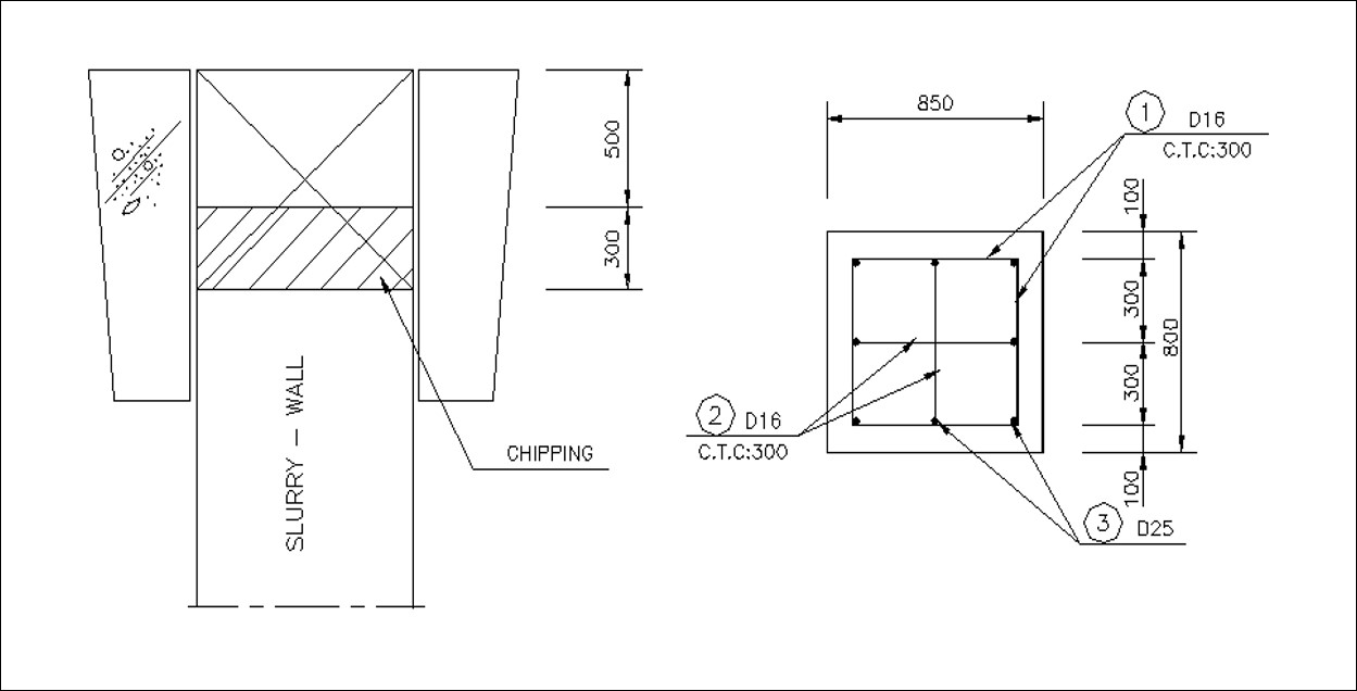
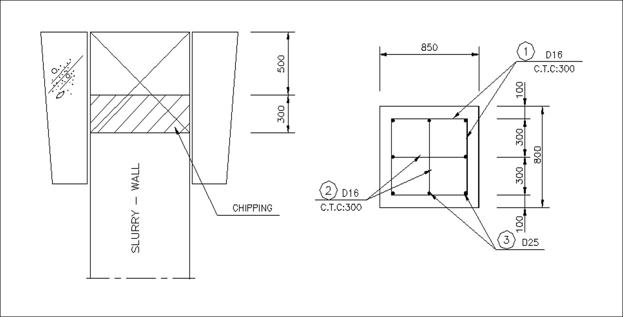
지하연속벽공법은 지반을 굴착해서 두꺼운(850mm 정도) 철근콘크리트벽체를 형성하는 방법입니다. 따라서 공법의 진행과정도 복잡하고, 굴착하는 동안 공벽이 무너지지 않도록 처리하는 것이 매우 중요합니디.

지하연속벽공법에서는 공벽이 무너지지 않도록 보통 벤토나이트 안정액을 사용합니다. 따라서 대지 내에 벤토나이트 안정액을 저장하고 처리할 수 있는 플랜트를 설치하는 있는 공간이 있어야 합니다.

지하연속벽공법은 주열식공법인 CIP공법과는 달리 직육면체 형상으로 지반을 굴착하고, 굴착깊이도 매우 깊습니다. 따라서 수직으로 안정적으로 굴착할 수 있도록 굴착장비(BC Cutter)를 셋팅할 수 있는 안내벽(Guide wall)을 먼저 시공해야 합니다.
연속벽을 만드는 과정을 1. 안내벽 설치, 2. 굴착, 3.철근콘크리트벽체 시공으로 나누어 살펴보겠습니다.
안내벽(guide wall)은 벽식 흙막이 공법의 시공 시 굴착(천공)작업에 앞서 굴착구 양측에 설치하는 가설벽으로서, 벽체형성체의 상부 지반 붕괴를 방지하고 굴착기계와 흙막이벽체 등의 정확한 위치 유도를 목적으로 설치하는 구조물입니다.
아래에 있는 단면도를 보면 나중에 설치될 지하연속벽 양옆으로 안내벽을 만드는지 알 수 있습니다. 안내벽을 먼저 만들어야 굴착장비를 셋팅하고 수직으로 정확하게 굴착할 수 있습니다.

1. 측량

2. 터파기

3. 거푸집 조립 및 철근 배근

4. 콘크리트 타설

5. 안내벽 설치 후 선행 굴착

굴착은 BC Cutter라는 굴착장비를 이용합니다. 이 장비는 대력 3m 길이를 한 번에 팔 수 있습니다.

그런데 3m 길이로 파서 철근콘크리트벽체를 만드는 것보다는 더 길게 굴착해서 더 큰 벽체를 만드는 것이 유리합니다. 따라서 아래 그림에서 보는 것처럼 1차 패널(Primary panel)을 만들기 위해 더 길게 굴착합니다.

표준시방서에서는 지하연속벽의 1차 패널(primary panel) 폭은 5~7m, 2차 패널(secondary panel) 폭은 굴착장비의 폭으로 제한하여 시공하는 것을 원칙으로 합니다. 즉 폭인 넓은 1차 패널을 먼저 만든 다음 2차 패널로 1차 패널을 연결하는데, 2차 패널은 대략 굴착장비의 길이인 3m보다 조금 작게 만들어집니다.

위 그림에서 보는 것처럼 굴착장비 길이보다 더 작은 간격으로 1차 패널을 양쪽에 먼저 만든 다음, 2차 패널을 만들기 위해 굴착장비로 굴착해갑니다. 이렇게 하면 1차 패널 옆면이 거칠게 형성되기 때문에 나중에 2차 패널을 만들기 위해 콘크리트를 부어넣으면 패널이 견고하게 연결될 수 있습니다.
1. 굴착장비 셋팅

2. 굴착

3. 안정액 관리

굴착하는 동안 공벽이 무너지지 않도록 안정액의 농도를 잘 조절해야 합니다.
굴착이 끝나면 굴착할 때 안정액에 섞여들어온 슬라임이 가라앉을 때까지 기다린 다음, 가라앉은 슬라임을 제거합니다. 이렇게 슬라임을 깨끗하게 제거한 후에 지상에서 먼저 조립한 철근망을 삽입합니다. 그리고 트레미관을 삽입하여 콘크리트를 타설합니다.
공벽에 안정액이 차있는 상태에서 콘크리트를 부어넣는 식으로 타설할 수는 없습니다. 따라서 트레미관이라고 하는 콘크리트 타설용 배관을 삽입해서 아래쪽에서 콘크리트가 차올라오도록 시공합니다.

1. 철근망 조립 및 삽입


2. 트레미관을 이용한 콘크리트 타설


지하연속벽체를 다 만든 후에는 하나하나 만들어진 벽체를 일체로 만들기 위해 상단을 연결하는 보(Cap beam)을 만들어 줍니다.

1. 두부 정리

2. 거푸집 조립 및 철근 배근

3. 콘크리트 타설

4. 캡빔 설치 완료 후 굴착

| 흙파기 - 아일랜드공법, 트랜치공법 (0) | 2022.03.18 |
|---|---|
| 흙막이 지지 - 버팀대(Strut; 스트러트) (0) | 2022.03.18 |
| 흙막이 지지 - 네일링(Nailing) (0) | 2022.03.15 |
| 흙막이 지지 - 지반앵커(Ground anchor 또는 Earth anchor) (0) | 2022.03.15 |
| 주열식 흙막이벽 - CIP(Cast In Placed Pile), SCW(Soil Cement Wall) (8) | 2022.03.13 |